
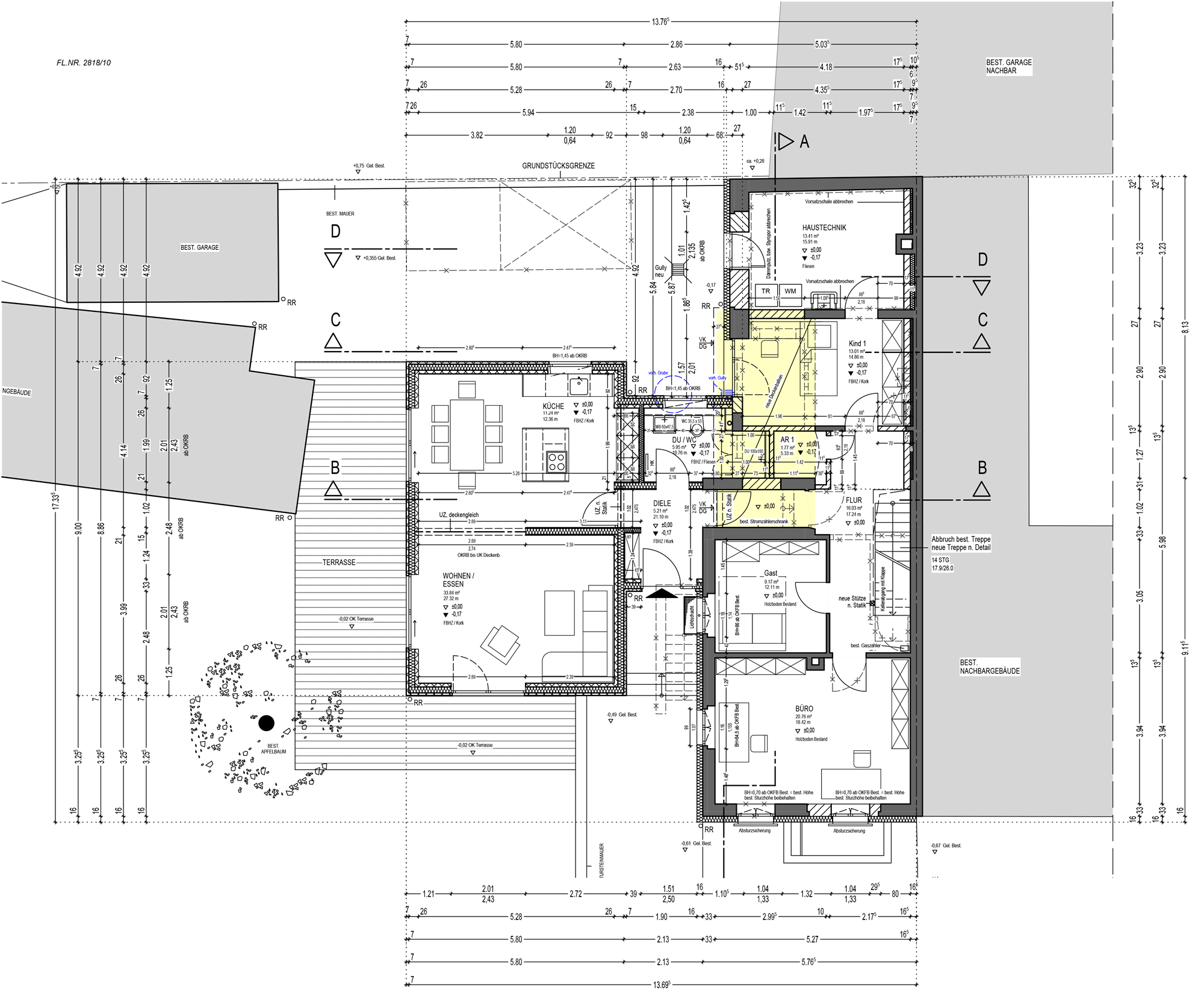
Sanierung und Erweiterung EFH
Sanierung einer Doppelhaushälfte mit Teilabbruch und Wohnraumerweiterung mit eingeschossigem Anbau in Holzkonstruktion| BV: | Sanierung und Erweiterung EFH |
| Ort: | Bayreuth |
| Jahr: | 2010 - 2012 |
| Bauherr: | Privat |
| Leistung: | LP 1- 5 |
| Stichwort: | Generalsanierung eines Einfamilien-Wohnhauses Erweiterung / Anbau Sanierung zum KfW-Effizienzhaus |
